Description
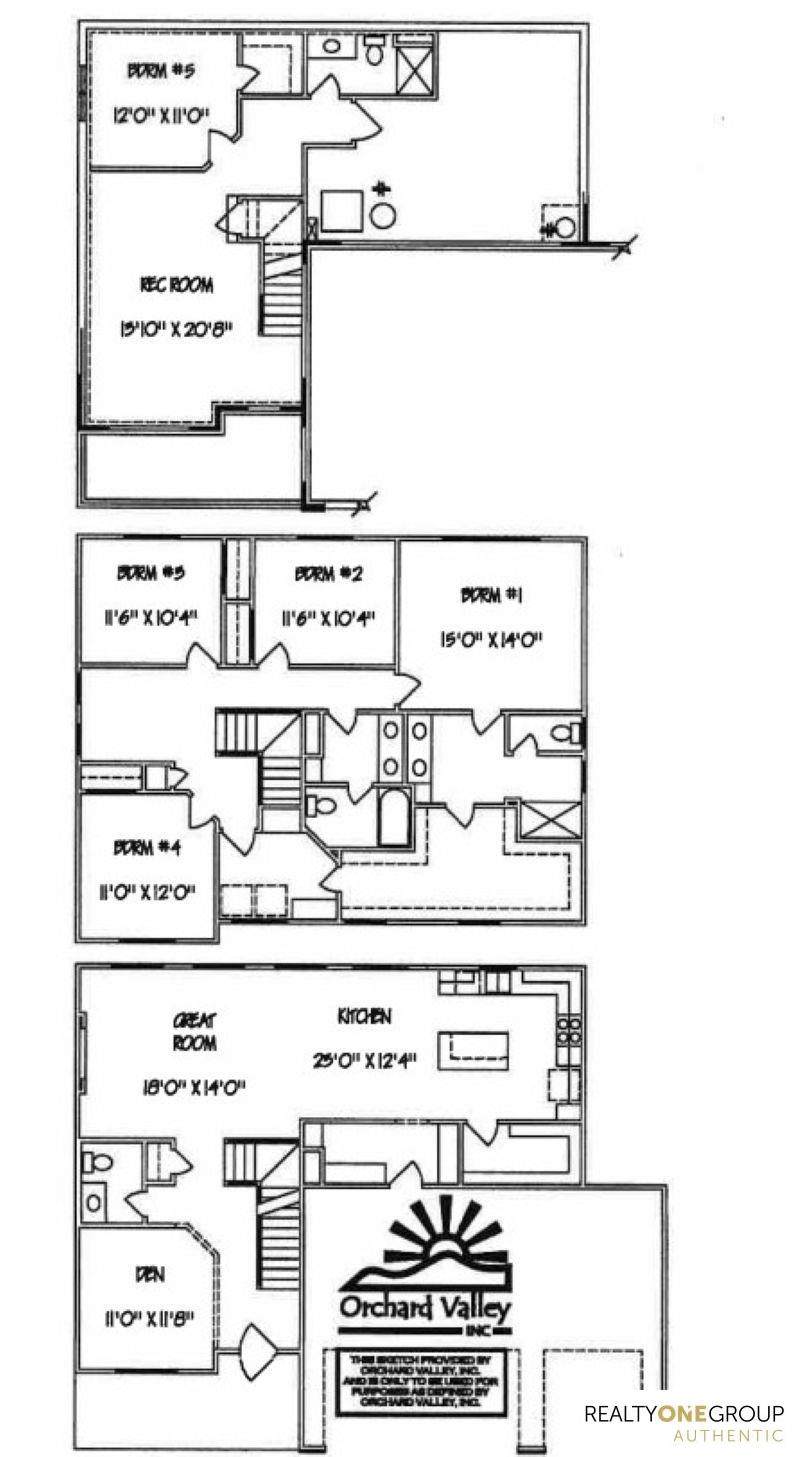
Photos and floorplans are renderings of future construction. Price includes home and lot. Sale is contingent upon buyer entering into a construction agreement with Orchard Valley Homes. Estimated completion timeline available upon request.
-
5BEDS
-
0.22ACRES
-
4BATHS
-
01/2 BATHS
-
2,993SQFT
-
$207$/SQFT
School Information
Description
Photos and floorplans are renderings of future construction. Price includes home and lot. Sale is contingent upon buyer entering into a construction agreement with Orchard Valley Homes. Estimated completion timeline available upon request.
Listing information © 2026 Great Plains Regional MLS. The information relating to real estate for sale on this website comes from the Internet Data Exchange program of the Great Plains Regional MLS. IDX information is provided exclusively for consumers' personal, non-commercial use and may not be used for any purpose other than to identify prospective properties consumers may be interested in purchasing. Information deemed reliable but not guaranteed accurate by the MLS or Jennifer Stai | Nebraska Realty. Data last updated 2026-02-07T14:33:41.763.
